AUCTION UNLESS SOLD PRIOR!
Vendor Says Sell! Calling all home buyers and investors! Are you looking for a Big family home with a massive living area and potential 5th bedroom brick veneer home?
Perfect for the growing family or great investment property. Look no further this Massive family residence awaits you! Selling at an affordable price this is the perfect opportunity to purchase this property at a Great Price!
Property Results is proud to present 13 Webb Place, Blackett
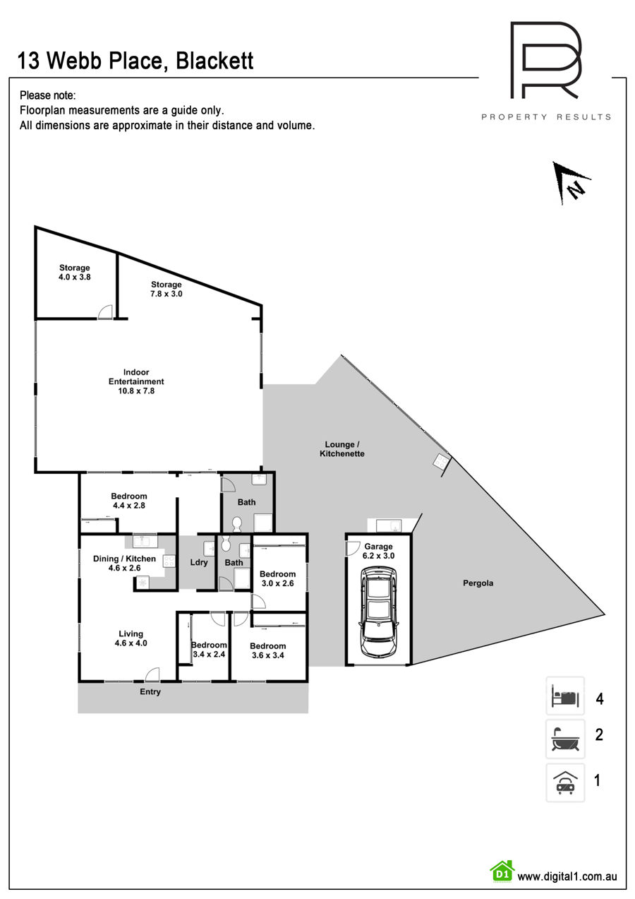
This much loved huge family residence has a generous sized lounge room upon entrance with seperate dinning area that flows to the original spacious kitchen with ample cupboard space.
Positioned in a private location to receive maximum sunlight, also showcasing 2 newly renovated contemporary bathrooms and a Massive family room in the rear. In addition, Huge storage/living areas.
Renovate or Knock down and rebuild, the choice is yours! This property will not last long on the market.
Call us today and book a private inspection or register for the Auction.
OFFICE; 02 8831 9989
LUA: 0481 753 411
NICOLNA: 0421 562 652
FEATURES:
- 4 Spacious bedrooms
- Potential 5th bedroom/study
- Original kitchen with ample cupboard space
- 2 Newly renovated stylish contempo bathroom
- Light filled open lounge room
- Seperate dining area
- Gigantic family/living room in the rear
- Split air conditioning
- Internal laundry
- Additional storage/living areas
- Fully fenced and low Maitenance backyard and front yard
- Huge carport on the side
- Storage shed
- Approx. 4-5 minute drive to Emerton Village
- Approx. 4- 5 minute drive to Charlie Lowles Leisure Centre
- Approx. 5 minute drive to Popondetta Park
- Approx. 5 minute drive to Mount Druitt Chifley College
*DISCLAIMER: Property Results have obtained all information in this property from sources we believe to be reliable; however, we cannot guarantee its accuracy. Prospective purchasers are advised to carry out their own investigations*